
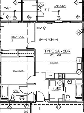
Grove Phase 1, Unit 205, (address: 250 Scott Lane):
- 2-bedroom 2-bathroom, approximately 900 square feet
- Range, refrigerator, dishwasher, microwave, large deck, storage, and washer & dryer.
- NO PETS ALLOWED
- Income Range: 50% to 80% of the Median Family Income -see income limits listed below
- Occupancy Requirement: two (2) or more people
- The monthly rental amount is $1,415, which includes electricity, water, sewer, and trash.
- At least one adult in the household must work a minimum of 1,560 hours per year. Please read the policies to enter any weighted drawing: Housing Department Rules & Regulations, Section 4: Weighted Drawing.
- Initial rental term estimated to begin July 2025. The first month's rent + a $1,500 security deposit will be due at signing. The total security deposit due is $3,000; $1,500 can be paid in payments over one (1) year ($125 per month).
- Deadline to Apply: Tuesday, May 27th by 5:00 PM. If selected first for this unit, you will be notified by phone, and you must submit a complete application within 5 business days. All others will be sent an email notice.
Income Limits - households may not earn more than the limits listed below:
Two-Person Household: $56,600 to 90,560
Three-Person Household: $63,675 to $101,880
Four-Person Household: $70,750 to $113,200
Five-Person Household: $76,410 to $122,256
Six-Person Household: $82,070 to $131,312
Asset Limit - $226,400
The Housing Department has transitioned to a new online account and application platform.
If you have created and completed your interest application before May 14th, and you meet the income and asset qualifications for the specific unit currently available, you will receive an email from us inviting you to enter the drawing for this unit. If you have not received an invitation email, you may not enter this drawing.
Step 1: To be eligible to enter, you must have received an invitation email. Click the link in the email to enter the drawing.
Step 2: Upload the following documents to your Interest Application before the deadline (May 27, 2025)
For Self Employment - please provide the following:
- Self-employment application here
Please contact the Housing Department if you have any questions or need assistance with the forms.
Floor Plan
